
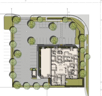
Grand Terrace, CA
The Animal Emergency Hospital in Grand Terrace needed to relocate due to extensive Cal Trans improvements to the 215 freeway near the Barton Road exit. The doctors were able to acquire an undeveloped piece of land a few blocks away in the same city. The site allowed us to design a 10,000 square foot building. 7,400 square feet was for the Animal Hospital and 2,600 square feet for a future tenant.
The freeway improvements were to start in one year so the project needed to move quickly through design, construction documents and government reviews. It is currently under construction and on schedule.
We worked closely with the doctors to design a hospital that would allow them to provide emergency services for animals as they have been doing for many years. The doctors were very knowledgeable and played a key role in the development of the design. Every space had special needs. We listened closely to those needs and designed the spaces around them.
The facility includes the following types of spaces: lobby, reception, dog walking areas, exam rooms, pharmacy, lab, x-ray, surgery prep, surgery, intensive care unit, treatment area, ultra sound, wards, isolation ward, freezer area, laundry, offices, break room, conference room and mechanical room to handle oxygen generation and a scavenger system.